

110' DOLCEVITA
Italian grand touring. Afloat.
110' DOLCEVITA
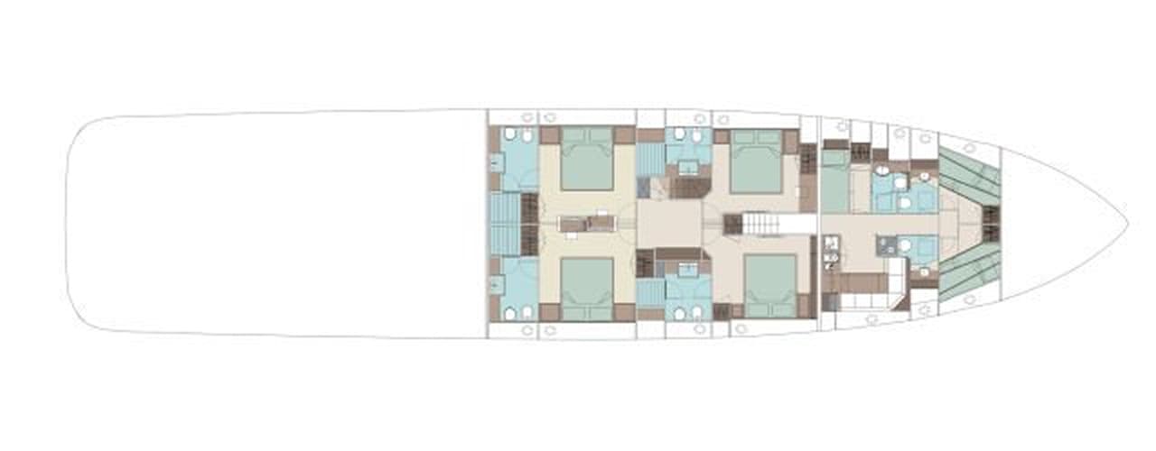
The 110' Dolcevita is the Riva flybridge as Italian grand tourer: low-slung, fast and built around glass. Floor-to-ceiling salon glazing gives 270-degree panoramas; the flybridge and bow lounges flow into a proper beach club at sea level. Five suites, rosewood and stainless throughout, and cruising speed north of 25 knots. This is the Riva Dolcevita promise delivered at 33.5 metres.